Espace propriétaire
fr
Espace Client
Espace Client

Votre recherche

Marseille (13008)

2 pièces - 39 m²

Marseille 8ème - Prado / Périer / Castellane

790 € CC*
Ref : 878
Vous souhaitez louer ?
Découvrir le bien

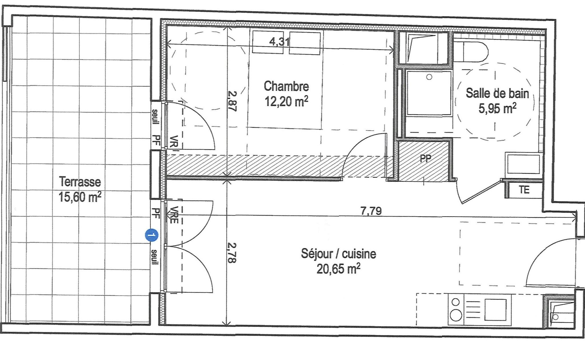
Marseille 8ème - Prado / Périer / Castellane. Dans une résidence récente livrée en février 2022, nous proposons à la location un agréable appartement T2 de 39 m², situé au 1er étage. Il comprend une belle pièce de vie de 21 m² avec cuisine ouverte, aménagée et équipée (plaque de cuisson, hotte, four), donnant accès à une terrasse de 15 m² exposée sud-est. Celle-ci est également accessible depuis la chambre de 12 m², dotée d’un espace de rangement. Une spacieuse salle d’eau avec WC vient compléter ce bien. Vous disposerez également d'une place de parking en sous-sol inclus dans le prix de la location. Situé à deux pas du Tunnel Prado Carrénage et de l'autoroute A50 ainsi que de toute les commodités (commerces, écoles, cinéma, métro et bus). Situé à 5 minutes de la place Castellane et du Parc du 26ème Centenaire. Loyer : 720 € hors charges + 70 € de provisions sur charges. Honoraires de location de 507 € à la charge du locataire (comprenant l'état des lieux d'entrée). Soumis aux plafonds PINEL. Disponible le 15/05/2026.

TRAD_ZEPHYR_Caracteristique TRAD_ZEPHYR_Valeurs
Code postal 13008
Surface loi Boutin (m²) 39 m²
Nombre de chambre(s) 1
Nombre de pièces 2
Meublé NON
Etage 1
Ascenseur OUI
TRAD_ZEPHYR_Caracteristique TRAD_ZEPHYR_Valeurs
Nb de salle d'eau 1
Cuisine Américaine
Mode de chauffage Climatisation
Type de chauffage Air pulsé
Format de chauffage Individuel
Terrasse OUI
Exposition Sud-Est
Année de construction 2022
TRAD_ZEPHYR_Caracteristique TRAD_ZEPHYR_Valeurs
Copropriété NON
TRAD_ZEPHYR_Caracteristique TRAD_ZEPHYR_Valeurs
Loyer CC* / mois 790 €
Honoraires TTC charge locataire 507 €
Dont état des lieux 117 €
Dépôt de garantie TTC 720 €
Charges locatives (Previsionnelles mensuelles les avec regularisation annuelle) 70 €
DPE GES
Contacter pour ce bien
L'agence
Téléphone 04 91 25 57 58
Adresse
2 rue Dr Albert Schweitzer 13006 Marseille

* Champ obligatoire

Les informations recueillies sur ce formulaire sont enregistrées dans un fichier informatisé par La Boite Immo agissant comme Sous-traitant du traitement pour la gestion de la clientèle/prospects de l'Agence / du Réseau qui reste Responsable du Traitement de vos Données personnelles. La base légale du traitement repose sur l'intérêt légitime de l'Agence / du Réseau. Elles sont conservées jusqu'à demande de suppression et sont destinées à l'Agence / au Réseau. Conformément à la loi « informatique et libertés », vous disposez des droits d’accès, de rectification, d’effacement, d’opposition, de limitation et de portabilité de vos données. Vous pouvez retirer votre consentement à tout moment en contactant directement l’Agence / Le Réseau. Consultez le site https://cnil.fr/fr pour plus d’informations sur vos droits. Si vous estimez, après avoir contacté l'Agence / le Réseau, que vos droits « Informatique et Libertés » ne sont pas respectés, vous pouvez adresser une réclamation à la CNIL. Nous vous informons de l’existence de la liste d'opposition au démarchage téléphonique « Bloctel », sur laquelle vous pouvez vous inscrire ici : https://www.bloctel.gouv.fr Dans le cadre de la protection des Données personnelles, nous vous invitons à ne pas inscrire de Données sensibles dans le champ de saisie libre.
Ce site est protégé par reCAPTCHA, les Politiques de Confidentialité et les Conditions d'Utilisation de Google s'appliquent.

Découvrir nos outils