Espace propriétaire
fr
Espace Client
Espace Client

Votre recherche

Marseille (13006)

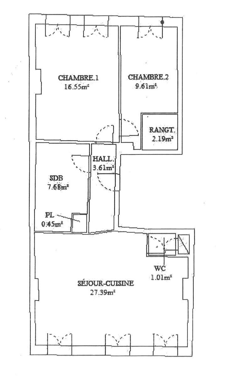
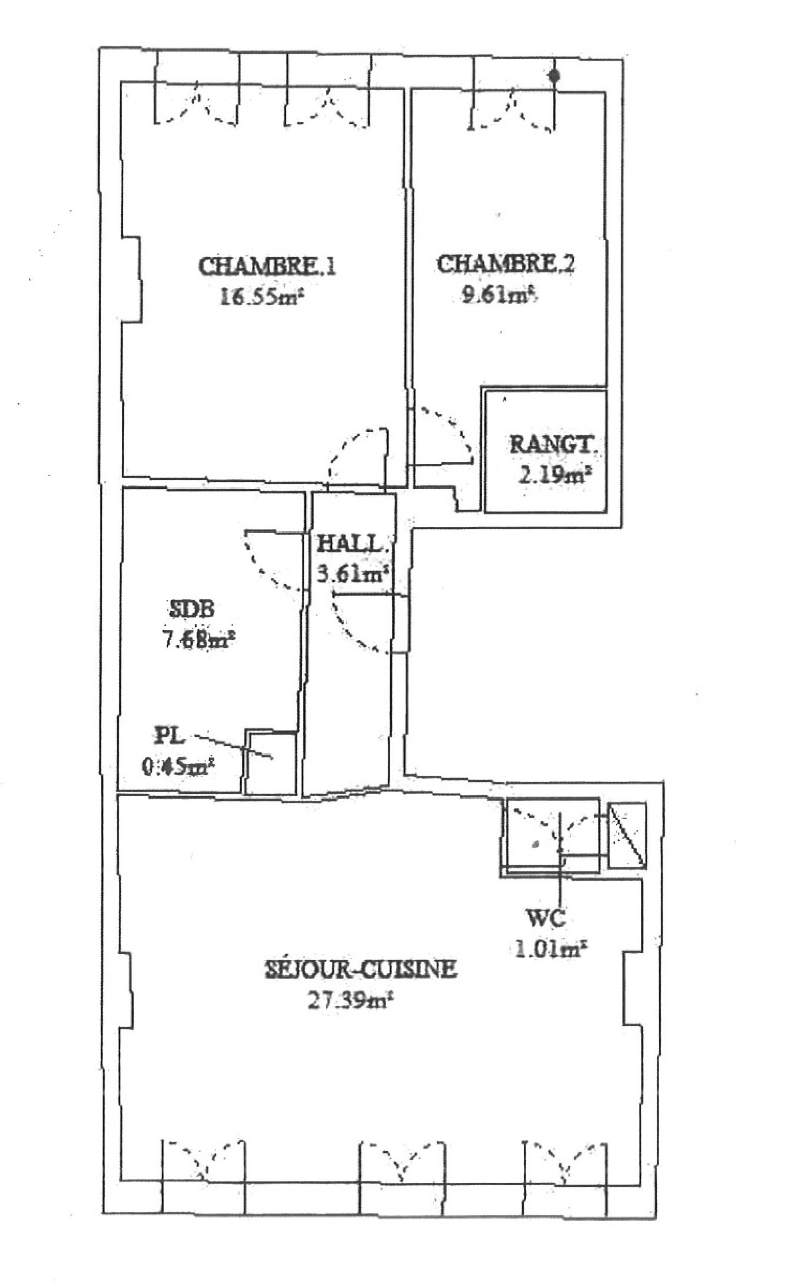
3 pièces - 68 m²

Marseille 6ème arrondissement - Proximité Préfecture / Notre-Dame du Mont DERNIER ETAGE

175 000 €
Ref : 1767
Découvrir le bien

SOUS COMPROMIS - Marseille 6ème arrondissement - Proximité Préfecture / Notre-Dame du Mont. Dans un immeuble ancien en plein centre-ville, nous vendons un appartement de type 3 de 68m² situé en 4ème et DERNIER ETAGE. Il bénéficie d'un séjour-cuisine de 27m² Les deux chambres sont au calme, et mesurent respectivement 16m² et 10m², disposant de dressing, double vitrage, vue dégagée. La salle de bain est spacieuse. L'appartement est le seul sur le pallier. Idéal premièr achat ou investissement.

TRAD_ZEPHYR_Caracteristique TRAD_ZEPHYR_Valeurs
Code postal 13006
Nombre de chambre(s) 2
Nombre de pièces 3
Etage 4
Nombre de niveaux 4
Ascenseur NON
TRAD_ZEPHYR_Caracteristique TRAD_ZEPHYR_Valeurs
Nb de salle de bains 1
Cuisine Américaine
Type de cuisine Equipée
Mode de chauffage Electrique, Electrique
Type de chauffage Convecteur, Convecteur
Format de chauffage Individuel, Individuel
Interphone NON
Visiophone NON
Balcon NON
Loggia NON
Terrasse NON
Cave NON
Exposition Est-Ouest
Année de construction 1900
TRAD_ZEPHYR_Caracteristique TRAD_ZEPHYR_Valeurs
Copropriété OUI
Lot n° 5
nombre de lots 5
Quote Part annuelle des charges 1 400 €
TRAD_ZEPHYR_Caracteristique TRAD_ZEPHYR_Valeurs
Prix de vente 175 000 €
Les honoraires d'agence seront intégralement à la charge du vendeur  
Charges 45 €
DPE GES
Contacter pour ce bien
L'agence
Téléphone 04 91 25 57 58
Adresse
2 rue Dr Albert Schweitzer 13006 Marseille

* Champ obligatoire

Les informations recueillies sur ce formulaire sont enregistrées dans un fichier informatisé par La Boite Immo agissant comme Sous-traitant du traitement pour la gestion de la clientèle/prospects de l'Agence / du Réseau qui reste Responsable du Traitement de vos Données personnelles. La base légale du traitement repose sur l'intérêt légitime de l'Agence / du Réseau. Elles sont conservées jusqu'à demande de suppression et sont destinées à l'Agence / au Réseau. Conformément à la loi « informatique et libertés », vous disposez des droits d’accès, de rectification, d’effacement, d’opposition, de limitation et de portabilité de vos données. Vous pouvez retirer votre consentement à tout moment en contactant directement l’Agence / Le Réseau. Consultez le site https://cnil.fr/fr pour plus d’informations sur vos droits. Si vous estimez, après avoir contacté l'Agence / le Réseau, que vos droits « Informatique et Libertés » ne sont pas respectés, vous pouvez adresser une réclamation à la CNIL. Nous vous informons de l’existence de la liste d'opposition au démarchage téléphonique « Bloctel », sur laquelle vous pouvez vous inscrire ici : https://www.bloctel.gouv.fr Dans le cadre de la protection des Données personnelles, nous vous invitons à ne pas inscrire de Données sensibles dans le champ de saisie libre.
Ce site est protégé par reCAPTCHA, les Politiques de Confidentialité et les Conditions d'Utilisation de Google s'appliquent.

Découvrir nos outils